(Editor’s note: The first installment of the Pascoe rebuild was posted on June 30. https://www.circlingthenews.com/764-radcliffe-re…with-the-pascoes/ This is an update.)
People who have NOT lost homes in the fire, seem to spend time trying to tell those of us that have that we need a cement plant, that we need a lumber yard, because with everyone building at once the town will be a mess (remember the Army Corps of Engineers was working in numerous areas at once and removed debris in about four months) and we need to train workers and build a place for workers to live – and oh, don’t forget to post the signs on your property for “no human trafficking.”
First, not everyone will be building at once. Some people are still trying to decide if they want to rebuild or what their next steps will be. The gap between construction fees and what insurance will pay is huge and people are trying to figure out how to pay the difference. Others are working with architects or contractors that have numerous homes in the works and are planning to build those homes at the same time, to save residents money with ordering and oversight.
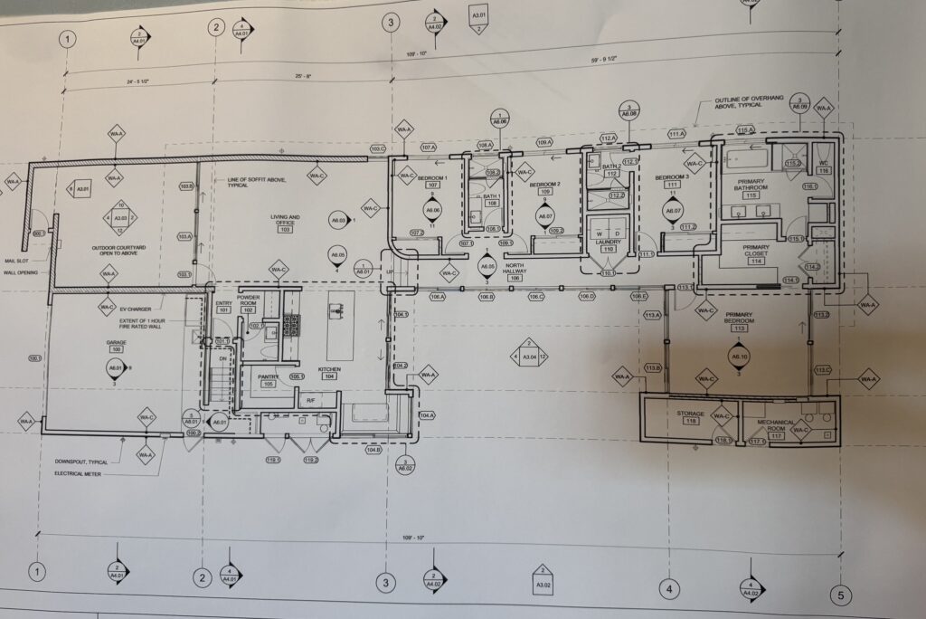
Second, regarding our home on Radcliffe, Bernado Teran of Marmol Radziner sent us an update on July 2.
“We have some good news to share. We met with the plan check engineer this morning to review our revised drawings and are now largely cleared for the building permit. In addition to this, our seven departmental clearances have been completed,” Teran wrote.
“One of the items left to complete is a grading bond. This is fairly common on residential projects and is required if there will be grading work of more than 250 cubic yards. If we account for the foundation and property drainage design, we exceed this amount,” Teran said. “The grading bond total is $1,831.76 and can be paid by a certified check or cashier’s check.
CTN asked about the grading bond. Teran explained “your property is categorized as a ‘special grading area’ by the Bureau of Engineering.”
A “special grading area” is different from the “Hillside Zone” designated by the Planning Department. A property in a “Hillside Zone” would have additional zoning code requirements to follow both on a normal project and under the fire rebuild design guidelines.
Teran further explained that the special grading area designation was assigned to L.A. City properties prior to the fires. “It is not explicitly stated why we have the designation but the Bureau of Engineering (BoE) assigns this to areas within the city that require special attention due to potential hazards related to grading, proximity to a fault, proximity to a canyon etc.,” he said. “This is a way for them to monitor and inspect grading activity. I would not be surprised if most of the Palisades has this designation by the BoE.”
He told us that once the grading bond was completed and paid (which was done on Monday) that “we will have one more meeting with the plan check engineer to go over these additional documents and final set of drawings. During this meeting the final permit drawings will be stamped ‘Ready to Issue’ by the City of Los Angeles. This means that the permit is ready to be issued for construction and permit fees can be paid. There are no permit fees for the time being, in our case.”
Teran said, “As long as the City Council votes to waive the fees, it will save everyone rebuilding a large amount of money.
“Additionally, from our experience, the rebuilding process has been much expedited,” Teran said. “We applied to the City on June 2 and about a month later, we will be ready to build.”


Best wishes to you and John on your rebuild
Nice progress toward your goal!
Your plans look great, Pascoe’s! So exciting for you guys.